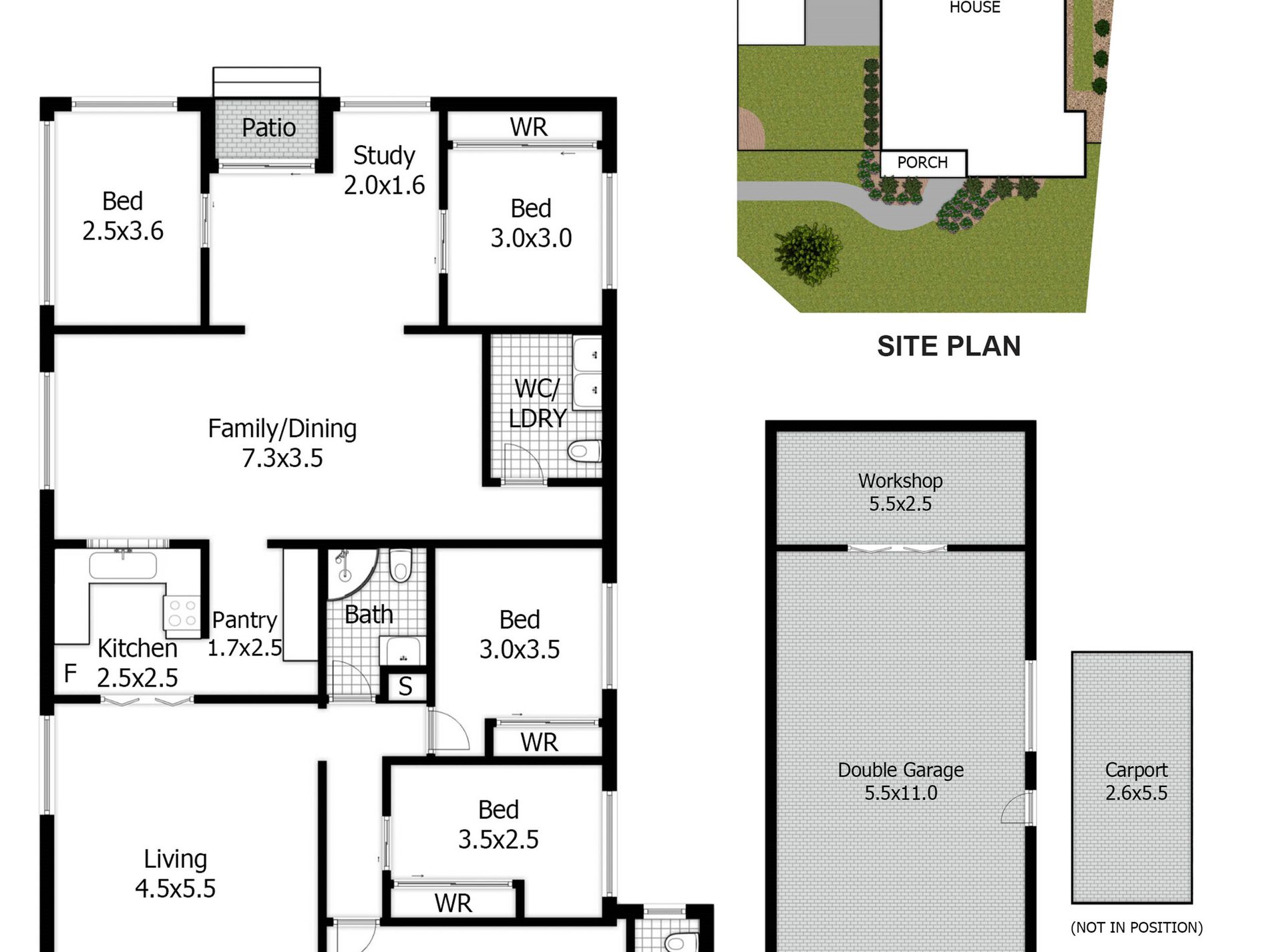
Ideally positioned with excellent main street exposure (northwest facing) this well-presented 5-bedroom (4 with built-ins) brick veneer residence offers exceptional space, versatility, and convenience for large families, investors, or those seeking a home business or medical/consulting opportunity.
The home features five generous bedrooms and two well-appointed bathrooms, complimented by multiple living zones including a formal lounge and a large family/rumpus room, providing flexibility for both relaxed family living and professional use. Ducted air conditioning ensures year-round comfort. Extra storage space in the attic with pull-down stairs.
Outdoors, there is a covered pergola which creates the perfect entertaining area overlooking landscaped gardens, while the fully fenced yard provides privacy and security. Car accommodation is a standout feature with a double garage & storage workshop, single carport and extensive parking for up to 7 vehicles - ideal for business clients, extended families.
Set on an approximately 620m² block, this neat and tidy property is conveniently located close to parks, public transport and shopping amenities, combining lifestyle appeal with outstanding exposure and potential.
A rare opportunity to secure a spacious, highly versatile property suited to family living, professional use, or investment.
Hilton Parkes Real Estate ONLINE enquiry policy:-
All online enquiries received from this website require BOTH a day time phone number and email address. Incomplete enquiries will not be attended to. "All information contained herein is gathered from sources we deem to be reliable. However, we cannot guarantee its accuracy and interested persons should rely on their own enquiries."





































































